Droomhuis aan het water op Lakeside Resort Brielle!
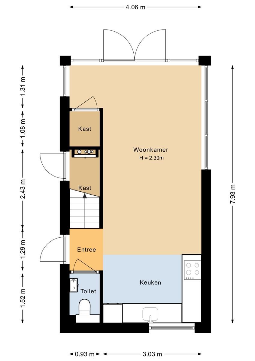
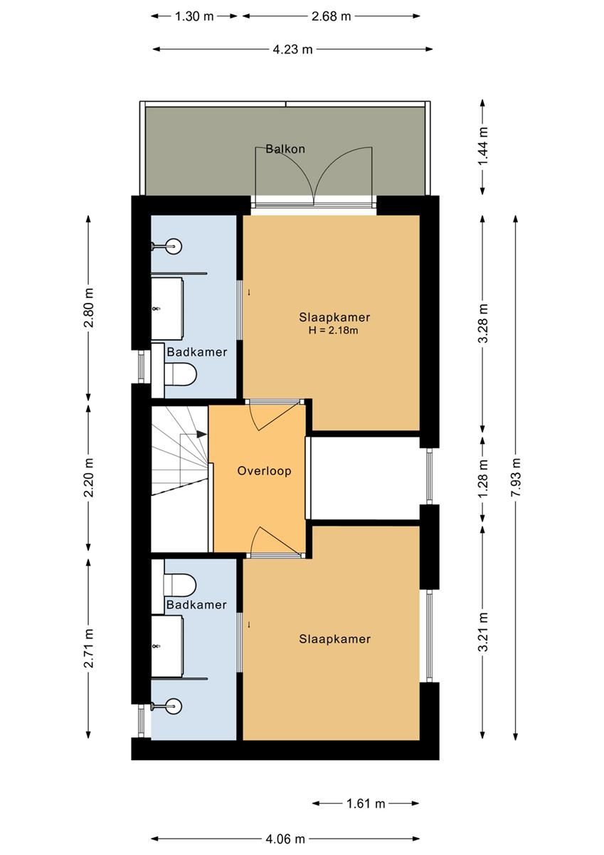
De woning beschikt over een royale, lichte woonkamer met grote raampartijen en een moderne open keuken inclusief Quooker. Boven vind je twee ruime slaapkamers, elk met een eigen en suite badkamer én toilet – ideaal voor comfort en privacy. Beneden bevindt zich ook nog een separaat toilet.
Duurzaam en comfortabel: het huis is voorzien van zonnepanelen en airconditioning(in elke ruimte), waardoor het in elk seizoen aangenaam vertoeven is.
Een zeldzaam aanbod op een toplocatie – perfect als investering of tweede thuis. Grijp deze kans!
Download de brochure
Plan een bezichtiging
Koopt u voor het eerst een vakantiewoning, bekijk dan eens op onze website wat een aankoopmakelaar voor u kan betekenen.
Omschrijving van de recreatiewoning
Woonkamer
Stap binnen in de royale woonkamer en laat je verrassen door het overweldigende gevoel van licht en ruimte. Dankzij de grote raampartijen en een stijlvolle lichtkoepel baadt de hele ruimte in natuurlijk daglicht – van zonsopgang tot zonsondergang. Hier ervaar je het echte binnen-buiten gevoel, met prachtig zicht op het water direct voor de deur.
De moderne open keuken is naadloos geïntegreerd in het leefgedeelte en vormt het hart van het huis. Uitgerust met hoogwaardige inbouwapparatuur en een handige Quooker, is dit de ideale plek om gezellig te koken, borrelen en samen te zijn. Of je nu lekker tot rust komt met een boek, of vrienden ontvangt voor een diner met uitzicht – deze woonkamer biedt het allemaal.
Keuken
De keuken is stijlvol uitgevoerd in antracietgrijs met een licht werkblad, wat een mooi contrast en een eigentijdse uitstraling geeft. Dankzij het ontbreken van bovenkasten oogt de ruimte open en luchtig. De zwarte schouw-afzuigkap vormt een elegant statement boven de inductiekookplaat. Verder is de keuken uitgerust met een Quooker, een combimagnetron en een koelkast met vriesvak. Het raam boven de spoelbak zorgt voor prettig daglicht en een fijne blik naar buiten tijdens het koken.
Slaapkamer 1
Deze ruime master bedroom is een echte oase van rust. Voorzien van een comfortabele dubbele boxspring en directe toegang tot het balkon, is dit de perfecte plek om ontspannen wakker te worden met uitzicht op het water. Dankzij de en suite badkamer geniet je hier van ultieme privacy en luxe.
Slaapkamer 2
Slaapkamer 2 is verrassend ruim en praktisch ingericht. De dubbele boxspring biedt optimaal slaapcomfort, terwijl de open kast zorgt voor een stijlvolle en overzichtelijke opbergruimte. Dankzij het grote raam valt er veel natuurlijk licht binnen. Net als de master beschikt deze kamer over een eigen en suite badkamer – perfect voor logees of gezinsleden die comfort waarderen.
Badkamer 1
Deze moderne en suite badkamer is direct verbonden aan de master bedroom en biedt alles wat je nodig hebt voor een ontspannen start of einde van de dag. De ruime inloopdouche met glazen wand geeft een luxe uitstraling, terwijl de wastafel met stijlvol meubel zorgt voor praktische opbergruimte. Het hangende toilet maakt het geheel strak en modern, en het kleine raam laat natuurlijk licht binnen – prettig én goed geventileerd.
Badkamer 2
De tweede en suite badkamer sluit naadloos aan op de tweede slaapkamer en is stijlvol én praktisch ingericht. De royale inloopdouche nodigt uit tot een verfrissende start van de dag, terwijl het wastafelmeubel zorgt voor een opgeruimde uitstraling. Een modern hangtoilet maakt het geheel compleet. Dankzij het raam is de ruimte prettig licht en goed te ventileren – comfort en gemak in één.
Omschrijving van het park
Lakeside Resort Brielle is een modern en exclusief vakantiepark dat zich onderscheidt door zijn prachtige ligging direct aan het water. Het park is ontworpen met oog voor rust, ruimte en comfort, en biedt daardoor een unieke woon- en recreatiebeleving.
Met zijn zorgvuldig aangelegde groene zones, waterpartijen en wandelpaden straalt het park een ontspannen sfeer uit waar je volledig tot rust kunt komen. De voorzieningen zijn uitstekend: van een sfeervol restaurant tot een speeltuin en faciliteiten voor watersportliefhebbers.
De vakantiewoningen zijn van hoogwaardige kwaliteit, ruim opgezet en voorzien van moderne luxe zoals zonnepanelen en airconditioning. De directe ligging aan het water maakt het park uniek en geeft je toegang tot volop waterplezier, van varen tot vissen.
Lakeside Resort Brielle is de ideale plek om te genieten van een ontspannen verblijf, een actieve vakantie, midden in een groene, waterrijke omgeving.
Omschrijving van de omgeving
Lakeside Resort Brielle ligt in het pittoreske Brielle, een historische vestingstad met sfeervolle straatjes en gezellige terrassen. De omgeving biedt volop natuur met uitgestrekte polders, wandel- en fietsroutes langs het water. Ook het Haringvliet en de stranden van Voorne-Putten zijn dichtbij, perfect voor watersport en ontspanning. Met steden als Rotterdam en Den Haag binnen 30 minuten rijden, combineer je hier rust met stedelijk gemak.
Wordt deze woning aangeboden door een particulier? Let dan op en lees het onderstaande artikel aandachtig door.
Recreatiewoning kopen met of zonder aankoopmakelaar.
Gaat u een recreatiewoning kopen dan staat u op het punt om een grote uitgave te gaan doen waarvoor u misschien jaren heeft gespaard. Het is voor u dan ook heel belangrijk dat u een goede aankoop doet en vooral niet te veel betaald.
Als u van een particulier een vakantiehuis koopt, wees er dan wel zeker van dat alle genoemde feiten actueel en correct zijn. Zijn er geen verborgen kosten, zijn er kwalitatieve beperkingen of voorkeursrechten? Allerlei zaken waarbij u zeker een expert kunt gebruiken.
Gaat u een recreatiewoning kopen via een makelaar onthoud dan goed dat de verkopende makelaar werkt voor de verkoper. De verkopende makelaar is een expert in onderhandelen, het is tenslotte zijn vak. Durft u de onderhandeling zelf aan te gaan met een expert of neemt u liever uw eigen onafhankelijke recreatiespecialist van Vakantiehuistekoop.nl mee!
Doe een bod